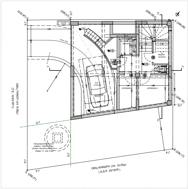
ΑΡΧΙΤΕΚΤΟΝΙΚΗ ΜΕΛΕΤΗ & ΣΧΕΔΙΑΣΜΟΣ ΟΙΚΟΔ. ΑΔΕΙΑΣ (04/2022)
ΝΕΟΥ 4ΟΡΟΦΟΥ ΚΤΙΡΙΟΥ ΚΑΤΟΙΚΙΩΝ, ΜΕ ΥΠΟΓΕΙΟ ΚΑΙ ΣΟΦΙΤΑ
GOOGLE - STREET VIEW
< χωρος * δειγμα εργου >
ΑΡΧΙΤΕΚΤΟΝΙΚΗ ΜΕΛΕΤΗ & ΣΧΕΔΙΑΣΜΟΣ ΟΙΚΟΔ. ΑΔΕΙΑΣ (04/2022)
ΝΕΟΥ 4ΟΡΟΦΟΥ ΚΤΙΡΙΟΥ ΚΑΤΟΙΚΙΩΝ, ΜΕ ΥΠΟΓΕΙΟ ΚΑΙ ΣΟΦΙΤΑ